Boathouse
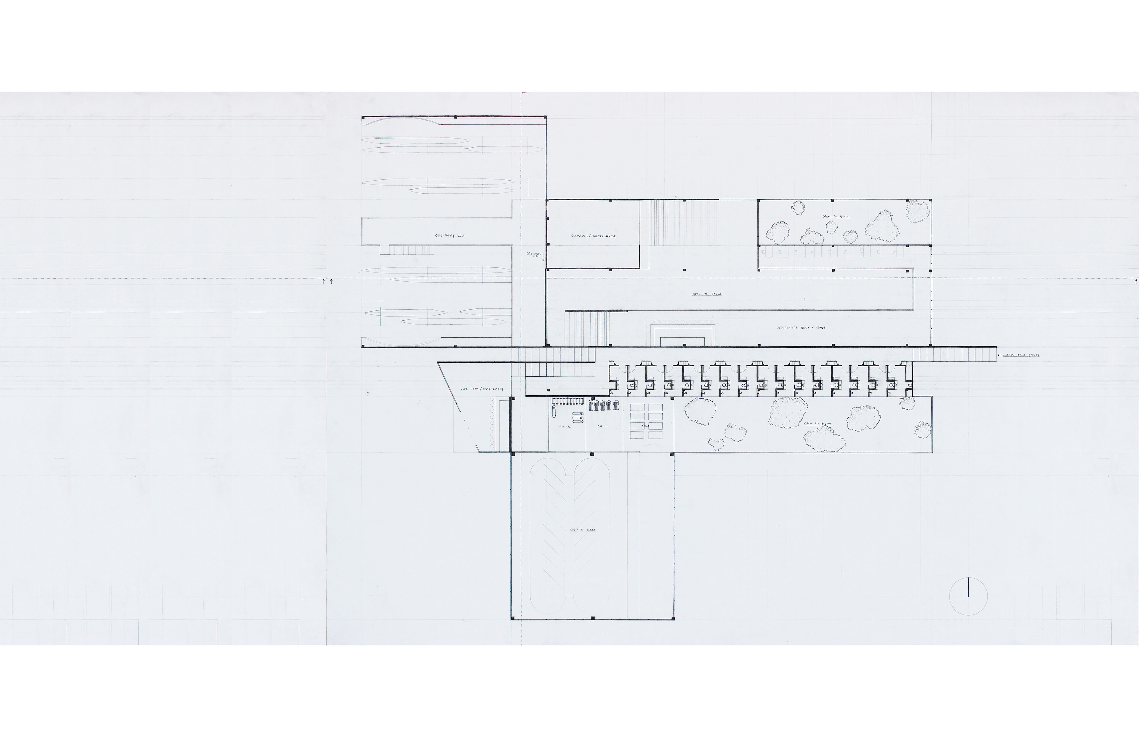
Instructor - Andrew Schachman Commissioned by the Chicago Rowing Club, the assignment is to create a boathouse facility within a given site on Goose Island in Chicago, IL.
Instructor - Andrew Schachman Commissioned by the Chicago Rowing Club, the assignment is to create a boathouse facility within a given site on Goose Island in Chicago, IL.