A semester-long course taught by Professor Arthur Takeuchi, the original Space Problem was a crucial aspect of the architectural pedagogy developed by Ludwig Mies van der Rohe in the 1930’s during his time at the Illinois Institute of Technology’s architecture program. The Space Problem moves beyond understanding architecture as a summation of the materials that manifests as a physical building, but rather explores the relationship of the materials, objects in space, the negative spaces, and human proportion as direct agents in affecting the perception of space.
The prompt is realized in the form of a private art gallery with accommodations for an overnight guest. Occupying an overall footprint of 168’x152’ in a lightly wooded Midwestern site with a slight slope of 11%, the footprint of the building itself is a perfect square of 104’x104’ subdivided into 13 bays of 8’x8’ modules and a structural bay of 24’x24’.
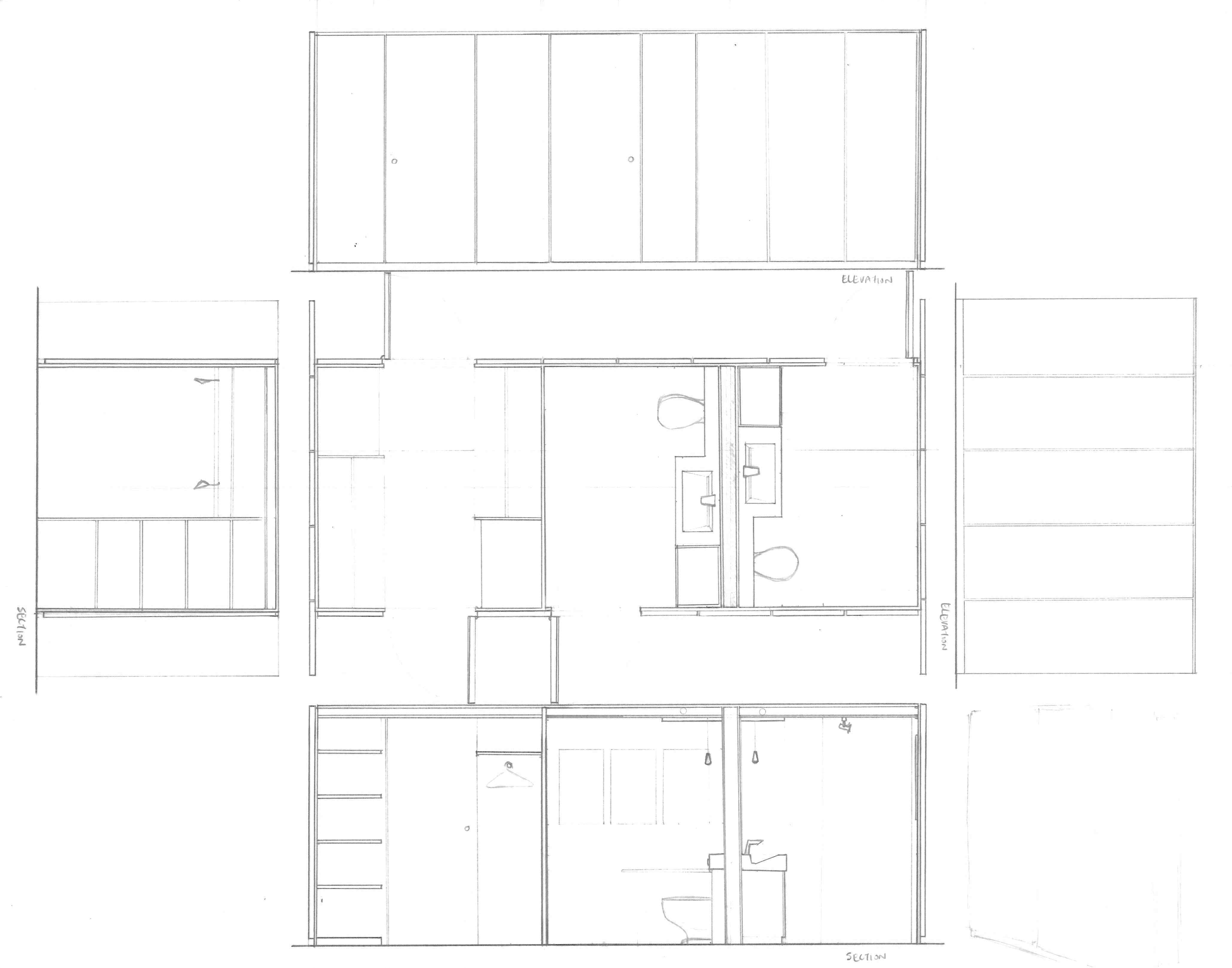
The architecture consists of a 40’ tall space that is subdivided using three intermediate mezzanines, resulting in spatial moments of 8’, 10’, 16’, 24’, 30’, and 40’ heights. A lounge, kitchen, and dining area is designed to support up to 30 guests with supporting powder rooms and overnight accommodations embedded within millwork cores that integrates into the space as sculptures within the collection of art.







Powder room core (main level)

Overnight guest core + bathroom + bar (upper mezzanine)

Kitchen core (upper mezzanine)